Diseño de Casa Habitación: Plano de Casa de 2 Pisos con Cochera, 3 Recámaras, Cocina con Isla y Doble Altura y Jardín.
¡Que tal! Hoy les presento el proyecto arquitectónico de una hermosa casa de dos pisos.
Nuestra visión para esta casa, es proporcionar un ambiente acogedor y moderno, donde las personas puedan vivir, compartir momentos, y disfrutar del confort de un hogar.
¡Veamos el diseño arquitectónico de esta casa habitación!
DISEÑO ARQUITECTÓNICO DEL PRIMER PISO.
Al ingresar a la casa, serán recibidos por un vestíbulo de acceso que da la bienvenida a los residentes, y visitantes por igual; y que cuenta con un closet integrado, para guardar ropa impermeable, y objetos para protegerse de la lluvia, entre otras cosas.
Desde allí, podrán explorar el resto de la vivienda, tanto en planta baja como el planta alta, ya que la escalera para ingresar a la planta superior, se encuentra en dicha zona.
La vivienda cuenta con cochera para un auto.
En dicha área, existen dos puertas de acceso, tanto para el exterior como para el interior de la vivienda.
Estando en el interior de la casa, nos topamos con un breve pasillo al lado de las escaleras, que nos conduce al comedor y cocina.
El espacio del comedor cuenta con una dimensión de 4.42 metros de largo, por 4.36 de ancho. Suficiente para que se ubique una mesa con 8 sillas. Un lugar perfecto para reuniones familiares y cenas especiales.
Junto al comedor, se encuentra la cocina, con una dimensión de 4.42 metros de fondo por 3.34 de ancho.
Con su moderna isla central, no solo es funcional, sino que también se convierte en un punto focal donde se pueden preparar deliciosas comidas y disfrutar de momentos informales en familia, ya que también cuenta con una barra desayunadora.
Y por si fuera poco, la cocina cuenta con una doble altura, esto es que, abarca tanto la altura del piso inferior como la del piso superior.
Hacia el fondo de la casa, nos topamos con la estancia, un espacio diseñado para brindar comodidad y calidez, ideal para momentos de relajación y entretenimiento.
Pero eso no es todo. Esta casa también cuenta con un hermoso jardín en la parte posterior, junto a la estancia. Entre la estancia y el jardín, se ubica un gran ventanal con puertas corredizas, para que se puedan integrar en un momento dado, las dos zonas.
Pasando al área de servicio en planta baja, vemos que la vivienda cuenta con una zona de lavado, planchado, y un medio baño con ventilación natural hacia el exterior.
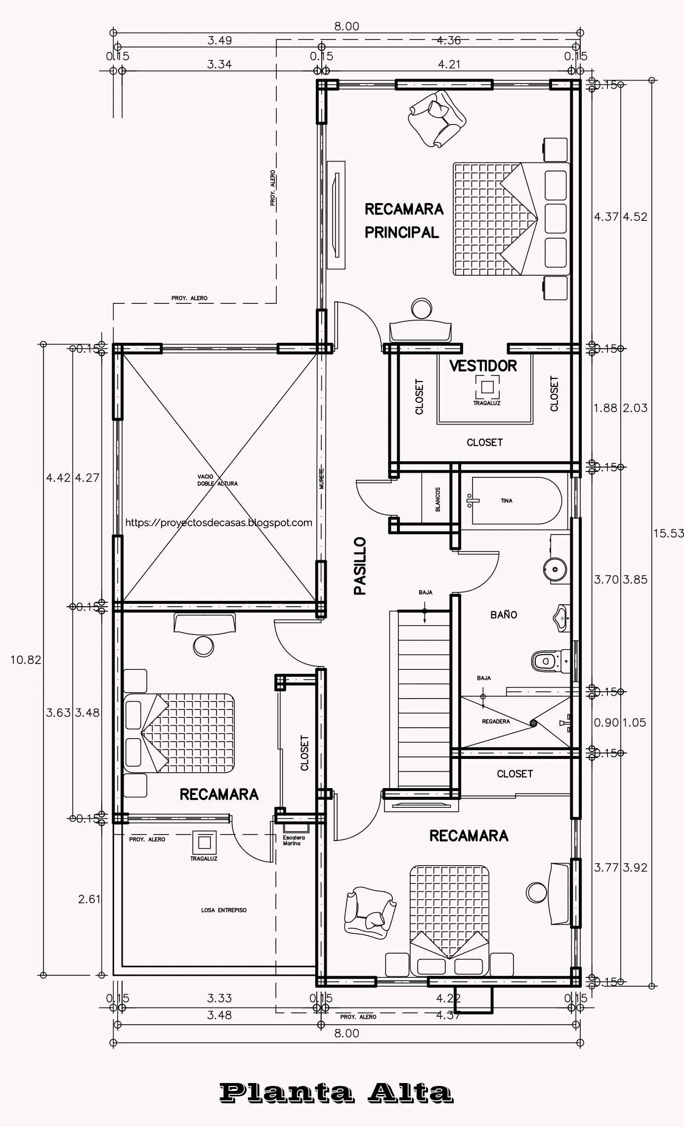
DISEÑO ARQUITECTÓNICO DEL SEGUNDO NIVEL.
Al subir al segundo nivel, descubrirán tres acogedoras recámaras.
Una de ellas y con mayor dimensión es la recámara principal, con unas medidas de 4.52 por 4.36 metros a eje, que ofrece un amplio espacio y con un vestidor adjunto.
Como nota, les puedo comentar que esta recámara principal, se puede conectar al baño en un momento dado; Tan solo se retiraría la tina, y se abriría una puerta de acceso proveniente desde el vestidor.
Pero cuéntame en los comentarios, de qué forma te gustaría mas a ti.
Pasando a las otras 2 recámaras, estas cuentan con unas dimensiones menores, pero no por eso dejan de ser funcionales, ya que cada una de ellas cuenta con suficiente espacio para colocar una cama matrimonial, tocador, e inclusive cuentan con closet propio.
En cuanto al baño completo, este cuenta con una tina, lavamanos, mingitorio, retrete y regadera; el espacio cuenta con 2 ventanas para una buena ventilación natural del mismo.
Este plano está diseñado para aprovechar el espacio disponible, en el que se pueden incorporar elementos modernos y funcionales, que se adaptan a las necesidades y estilo de vida de sus habitantes.
Espero que les haya gustado la presentación de este proyecto, y te haya dado algunas ideas, para diseñar tu futura vivienda.
Si te gustó el Diseño Arquitectónico de esta casa habitación de 2 niveles, te agradecería lo compartieras en tus redes sociales.
Y no se te olvide seguirnos en nuestro canal de Proyectos De Casas y suscribirte. ¡Gracias!
👇 DA CLICK EN LA IMAGEN PARA VER EL VIDEO 👇



