Fachada y Planos de una Casa de Recreación (Chalet).
FACHADA:Imagen del Chalet con sus 3 accesos del Garage.
En la parte central de la imagen notamos lo que es el cubo de escaleras con su ventanal alargado terminando a medio arco en la parte superior, junto a esta se encuentra la Entrada Principal con dos pilastras al frente que dan soporte al frontón del área en cuestión, y lo que se ve del lado derecho de la imagen viene siendo el cuarto de huéspedes.
Esta vivienda cuenta con dos chimeneas, una se ubica en el Salón Familiar y la otra en el Área de Estar.
En la parte posterior se encuentra una especie de terraza con cubierta para apreciar la vista exterior que se encuentra en ese punto de la casa.
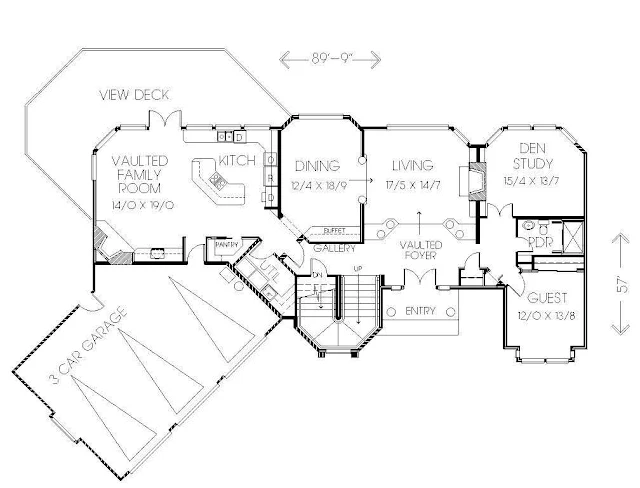
A continuación los dejo con las Plantas Arquitectónicas para que aprecien la distribución de los espacios de este Chalet o Casa de Recreación:
PLANTA BAJA: Puedes hacer clic en las imágenes para ampliarlas
PLANTA ALTA:
Otro Planteamiento Arquitectónico agradable para tener Ideas de Construcción:



